RESIDENTIAL DESIGN

SHARP RESIDENCE

ocation: Pawley’s Island, SC

This 2400sf ocean-front home is a contemporary style with earthy architecture elements. The challenge was to design a custom residence to fit on a tight uneven lot amongst the gorgeous Live Oak trees and provide plenty of openings to the ocean view. Our primary focus was to maximize efficiency and aim towards a low carbon footprint within the owners’ budget. To achieve these goals, the home was zoned into three separate spaces for energy-efficiency, passive solar and cooling design was applied and a green-vegetated roof. Local materials such as reclaimed heart-pine and charred wood were incorporated and shaped by talent craftsmen to achieve a thoroughly authentic look that fit the owners’ aesthetic and values. 

 

 

 

MARSH SIDE RESIDENCE

A modern 3500sf marsh side residence, orientated to take full advantage of the sun’s location and cool breezes off the water.

Location: Folly Beach, SC

Completed Early 2022

 

 

 

  

 

 

JAMES ISLAND EXTERIOR UPFIT

This classic 1950s ranch was in need of a modern update. New landscaping with large wooden planters, privacy walls + oversize concrete pavers combine with a fresh modern palette, has breathed new life into this well built gem.

Carpentry by Handcrafted LLC    |    Photos by A Spot in Time Photography

CREEK SIDE RESIDENCE

This modest 1800sf home was designed to capture maximum views of the beautiful Rantowles Creek.  This home is handicap accessible for ‘aging in place.’ The simple, yet traditional ‘Lowcountry’ design is perfect for this gorgeous landscape.

Builder: New Generation Craftsmen

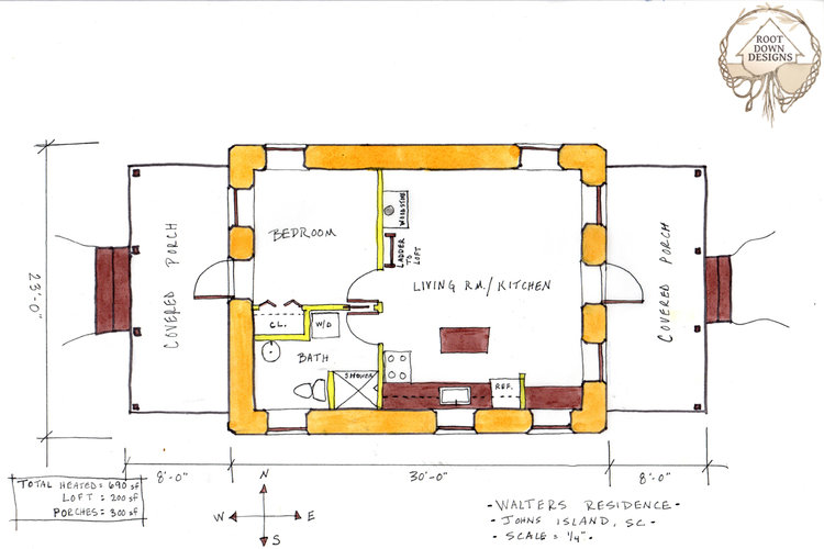
WALTER RESIDENCE

Location: Johns Island, SC

This 800sf home is the epitome of local materials and chemical-free design. The walls are stabilized rammed earth with a lime plaster finish on the interior…no drywall or typical wood trim was used. The earthen walls were formed with beveled details at the openings to celebrate the structure. The design incorporates two covered porches to enjoy the surrounding land, a 200sf loft, reclaimed heart-pine woodwork, and a passive solar/cooling design. The exterior patio was built by the students of American Building Arts College, lead by April during one of her courses.
Builder: Joe Fau

 

 

RAMMED EARTH RESIDENCE

Location: Charleston, SC

This incredibly efficient rammed earth residence is a mere 650sf with 350sf upstairs; the home includes 3 bedrooms/2 baths + a spacious living/kitchen. Unique/timeless finishes include cob window sills, clay plasters, and lime paints. These clients could not be more pleased with their utility bills! Passive Cooling, yes!!!

Builders: Mike Eippert (GC)  |  Handcrafted LLC (Rammed Earth)

Photos by A Spot in Time Photography

JAMES ISLAND ADDITION + INTERIOR RENOVATION

A 1950s ranch in need of a modern update for a growing family. A substantial rear addition of a master suite with laundry and a home office was just what they needed. The main home also need a refresh to its dated chemical-laden finishes. New mineral paints, lime plasters and lighting were added throughout.

Carpentry by Handcrafted LLC    |    Photos by A Spot in Time Photography 

SMALL HOME DESIGN NEW CONSTRUCTION

Location: Wadmalaw, SC

Custom designed 1200sf plan consisting of a 950sf main floor with an open living + kitchen area. Upstairs is a 225sf open loft or second bedroom. The single slope roof will be oriented for solar panels and rain water collection. Raised off the ground a full story with parking and/or workshop space below.  

See the Stock Plan!

Rendering by Gina Iacovelli |  Animation & Graphics by Steel Marsh 

SMALL HOME DESIGN NEW CONSTRUCTION

Location: Wadmalaw, SC

Custom designed 895 SF floor plan with 360 SF of porch space. This efficient floor plan consists of 3-bedrooms, 2-full baths, and open kitchen + living room and a laundry area. The exterior will be clad in charred cypress siding with a metal roof. 

See the Stock Plan!

Rendering by Gina Iacovelli

  

SMALL HOME DESIGN NEW CONSTRUCTION

Location: Berkeley County, SC

Custom for a family of 8. This 2200 SF floor plan has been specifically designed for the southeastern climate zone. It contains 5-bedrooms, 2.5 bathrooms, full laundry room with pantry,  open kitchen + living room and sunny dining room. 

See the Stock Plan!

Rendering by Gina Iacovelli

 

SMALL HOME DESIGN NEW CONSTRUCTION

Location: Berkley County, SC

Custom designed with a 500 SF open living space and master bedroom suite on the first floor. A 250 SF flex space occupied the second floor. 1000 SF of wrap around porch.

See the Stock Plan!

Rendering by Gina Iacovelli 

 

 

 

 

BACKYARD YOGA HUT NEW CONSTRUCTION

Location: West Ashley, SC

This 200 SF floor plan w/ covered porch has been custom-designed as a backyard Yoga Hut which doubles as a guest bedroom. The plan consists an open flex space designed with built-in storage, a flip-up ‘murphy bed’, and an option for vaulted ceilings. The high ceilings make this compact space feel extra roomy and enhances natural cooling. 

See the Stock Plan!

Rendering by Gina Iacovelli  

 

 

 

Cooley Kitchen Renovation

Location: James Island, SC

Residential renovation of 1960’s brick ranch. Opened up the floor plan and remodeled the Kitchen.

Builder: Brenton Reuger 

 

 

McQueen Kitchen Renovation

Location: Charleston, SC

Residential renovation of 1950’s brick ranch. Opened up the floor plan and remodeled the Kitchen.

Builder: Handcrafted LLC 

 

 

 

 

 

 

 

 

 

 

 

 

 

 

 

 

 

 

 

 

 

 

 

 

Follow us for happenings & updates!

Copyright Root Down Designs LLC

Root Down Designs, LLC

PO BOX 13945

Charleston SC 29422

info@rootdowndesigns.com